我们的双层排屋是否有可能比Bungalow大洋房更有吸引力,更宽敞?
我们很多人都在考虑如何最大限度地提高家庭的可用空间。但实际上,我们是否真的需要所有额外的空间?
或者是因为我们认为一个更大的家庭空间等同于衡量一个人的成功吗?

这间双层排屋在外看起来跟其他的双层排屋没两样。但白色配灰色的外观设计暗示了这间双层排屋的内部设计并不简单,而且还是你想象不到的美。
为了与周边建筑风格取得统一,建筑师在临街立面上设计了一个抢眼的三角形屋顶,与旁边住宅形成了对称的屋顶轮廓线。

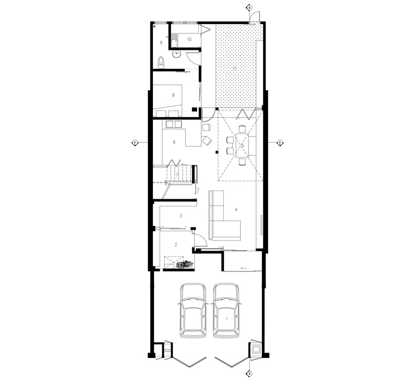
2010年的时候,马来西亚建筑事务所DCA建筑团队把场地面积只有22′ ×75’的双层排屋用上了这个设计概念- “J House”。
‘J House” 是一个位于马来西亚雪兰莪州(selangor)梳邦市郊外的一个双层排屋改造项目。现有建筑被夹在两座住宅之间,仅留一个细长狭窄的基地。
这项改造项目可说是90%改造了内部和外部,施工花费和屋里的家私高达马币650k。
这个独特的双层排屋设计的目的是创造一个有自己休闲风格的有吸引力的活动空间。这个设计风格的目的很简单就是加强家庭联系,开心安全的生活。

围栏,围墙和家庭栅栏的设计都选择了安全性最好的“网格栅”。因为它看似精致和简单的设计更保守,安全和美观。网格栅颜色的使用是白色和灰色的,所以房屋内外的对比变得更加平行或匹配。

建造一个更开放的概念,家里的内部纯粹是白色的设计。起居室和用餐区也排成一列,以最大限度地利用空间。
位于用餐区旁边的厨房可以随意打开和关闭;大多数人都喜欢开放式厨房。

为了您的所知,如果我们无法控制色彩选择方面的欲望,使用昂贵的材料常常看起来不美观,所以试着先从建筑师那里得到建议。
建筑师的目的是要美化你的家园,但要整体美官,而不是光靠几个物品,它甚至考虑到所有用来匹配的物品!

这个房子的屋顶上还有一个天窗,使得来自外面的自然光线在房子里产生空间看起来更加自然和宽敞。
但是,即使所有这些设计精美的空间,真正给这个家庭带来“哇”的因素肯定是户外庭院和用餐区双倍的天花板空间。

▲ ▼ 双倍的天花板空间

大马社会上有各种各样的看法,用650k来装修一个老房子到底值不值得? 还是直接买一套有了装修相同等值的新房子?
答案是要看你的屋子是不是在繁华的市中心,然后努力询问合格的承包商和建筑师关于顶尖的概念内部和外部的建设总成本!
从那里你可以正确的预算,并做出正确的价格比较。
这些元素要一一描述并不容易,所以我们会让照片去说话。但是我们要说的是,这是一个令人惊叹的家园。








照片来源:www.dca.com.my
